交流單相電流變送器是一種將被測電量參數(交流電流互感器輸出的0-5A或0-1A信號)轉換成隔離直流電流、直流電壓或數字信號的裝置。交流單相電流變送器符合標準GB/T13850-1998。
1、技術指標

2、輸出信號調整及說明
交流單相電流變送器在出廠時已經調整至最佳狀態,輸出信號調整操作僅在產品輸出精度不高時做微調用。正常情況下嚴禁使用!!
在進行以下調試時,請將交流單相電流變送器通電預熱30分鐘,以達到最佳穩定性。
此標志處的電位器為輸出信號調零用
此標志處的電位器為調整輸出信號量程用2.1 輸出信號零點調整:輸入信號為零時,通過調零電位器將變送輸出信號調到所需要的最低值。
2.2 輸出信號滿度調整:將信號輸入為滿度(最大值),通過量程電位器將變送輸出信號調到所需要的最大量程值。
2.3 反復操作2.1和2.2,直到調到所需要的值為止。
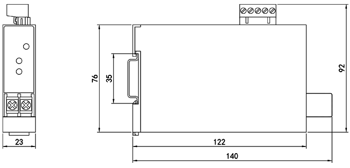
3、交流單相電流變送器外形尺寸
安裝方式:可固定安裝在35mm的標準導軌上。


4、接線方式(具體以產品實物為準)

說明
1、交流單相電流變送器說明書為PDF格式文件,需要解壓后在PDF閱讀器中打開。
2、如果本頁提供下載的“交流單相電流變送器說明書說明書”不能順利下載或打開,請及時通過網頁上的客服QQ或電話0871-65127691聯系,昌暉將以郵件方式發送交流單相電流變送器說明書給您!
3、交流單相電流變送器產品型頁面http://www.rjxysw.com/product/1265.html,選型請前往!






